Listing Tools

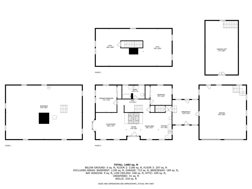
Traditional style Cape situated on private 10 acre lot in the adorable town of Newfields within the SAU #16 school district. This wooded parcel offers privacy for the existing 1989 Cape with 2 car garage. Currently, the home offers approx. 1254 square feet of 1st floor living space with 2 bedrooms, 1 bath, an eat-in kitchen, living room and laundry hook-up area. A brick fireplace is the center feature of the home with hardwood floors throughout most of the first floor layout. The second floor offers expansion opportunity for finishing space as additional bedroom(s), bath, and/or bonus/office space, as desired. In addition, there is a full sized unfinished basement and unfinished space over the 2 car garage. The heating system was updated in the last 12 years, a new oil tank(2025), chimney lined and capped in 2023, and the 4-flue chimney currently handles the heating system, wood stove(basement) and fireplace. The well pump and tank were replaced in 2021. There is so much potential to renovate and expand this home to today's style and finishes while enjoying the 10 acres of privacy with plenty of space for landscaping, fire pit areas, and woods to explore. Enjoy the proximity to the local Newfields General Store, nearby shopping, and easy access to highway/routes to adjacent towns of Exeter, Stratham, Newmarket or quick drive North toPortsmouth or South to Boston..

Property Details of 120 Old Lee Road

Property Details

Interior Features

Exterior Features

Utilities and Appliances

Other Details

Map Location

Driving Directions

Broker Reciprocity 

Copyright 2025 PrimeMLS, Inc. All rights reserved. This information is deemed reliable, but not guaranteed. The data relating to real estate displayed on this display comes in part from the IDX Program of PrimeMLS. The information being provided is for consumers’ personal, non-commercial use and may not be used for any purpose other than to identify prospective properties consumers may be interested in purchasing. Data last updated November 12, 2025 12:57 PM EST

 

Hi there! How can we help you?

Contact us using the form below or give us a call.

Send Us A Message:

I agree to receive marketing and customer service calls and text messages from The Bassett Team. To opt out, you can reply 'stop' at any time or click the unsubscribe link in the emails. Consent is not a condition of purchase. Msg/data rates may apply. Msg frequency varies. Privacy Policy.

Do not fill in this field:

This site is protected by reCAPTCHA and the Google Privacy Policy and Terms of Service apply.