Listing Tools

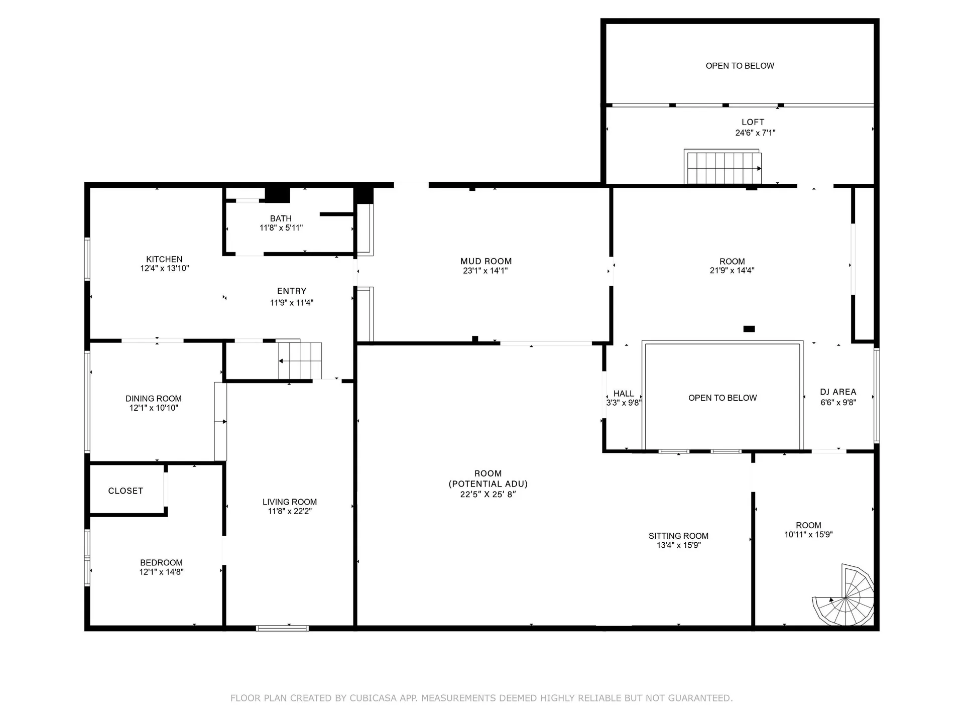
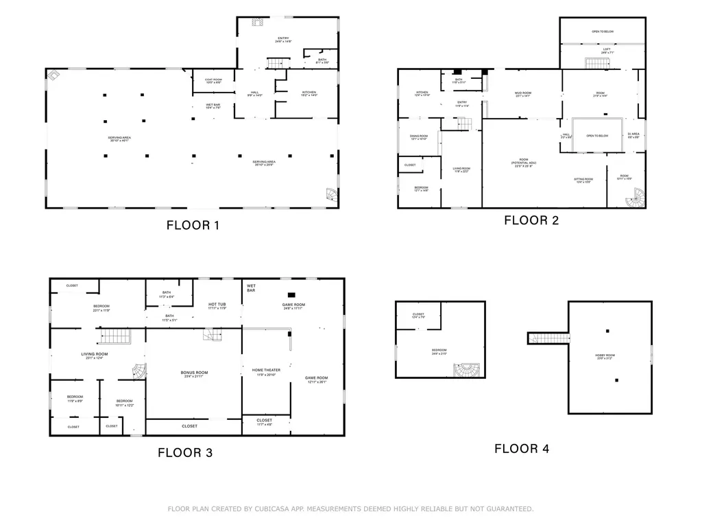
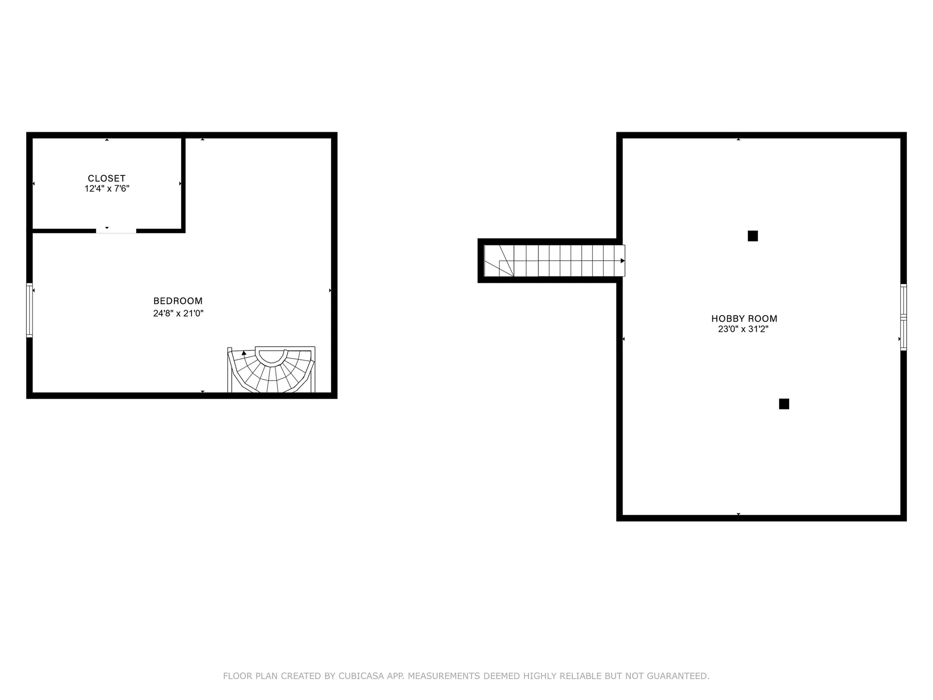
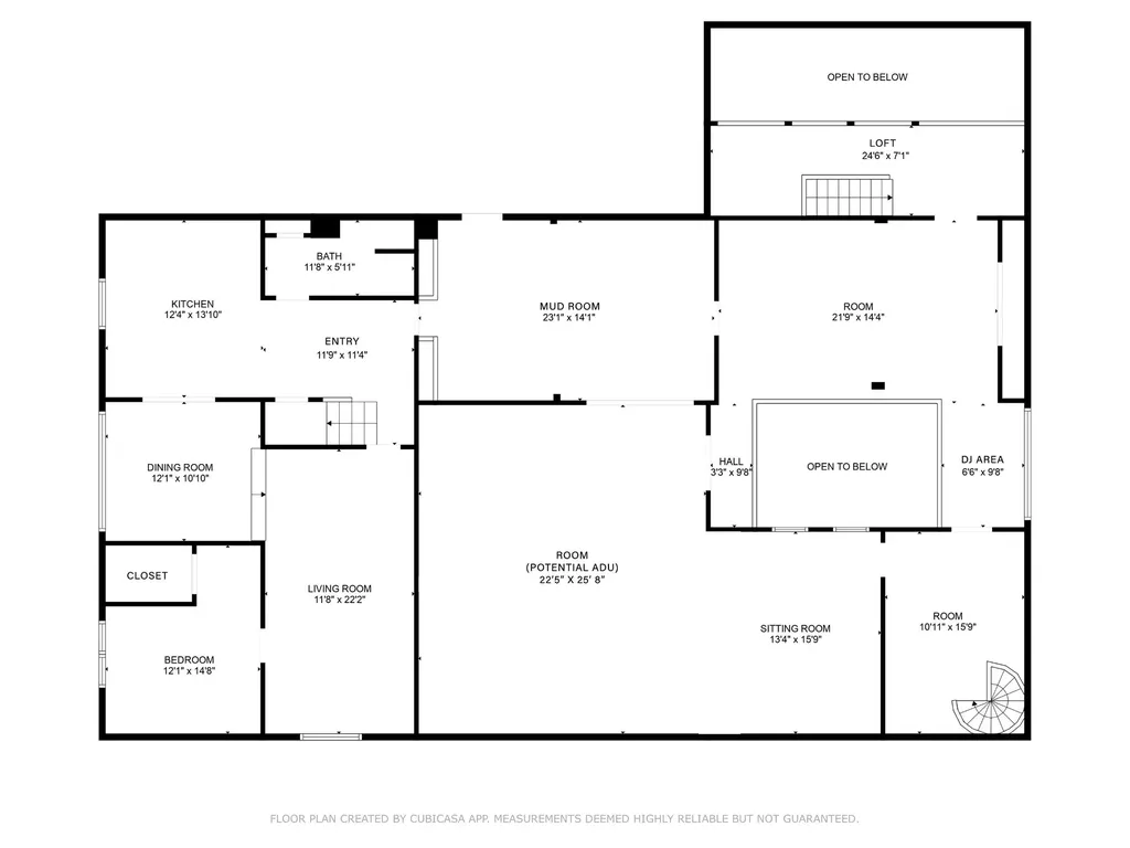
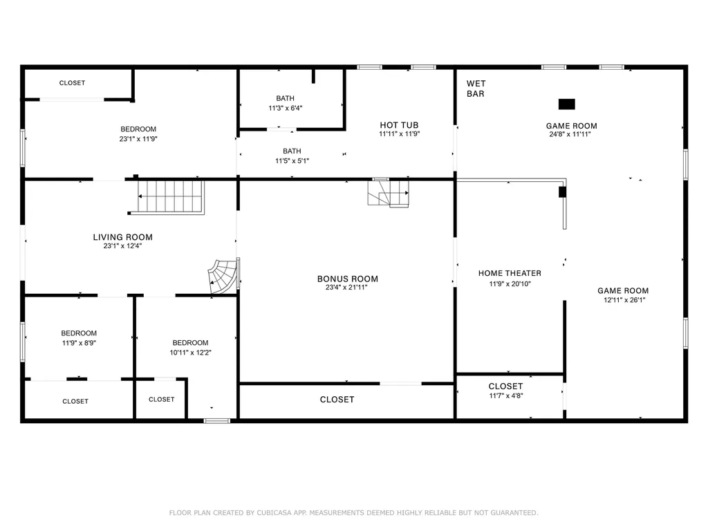
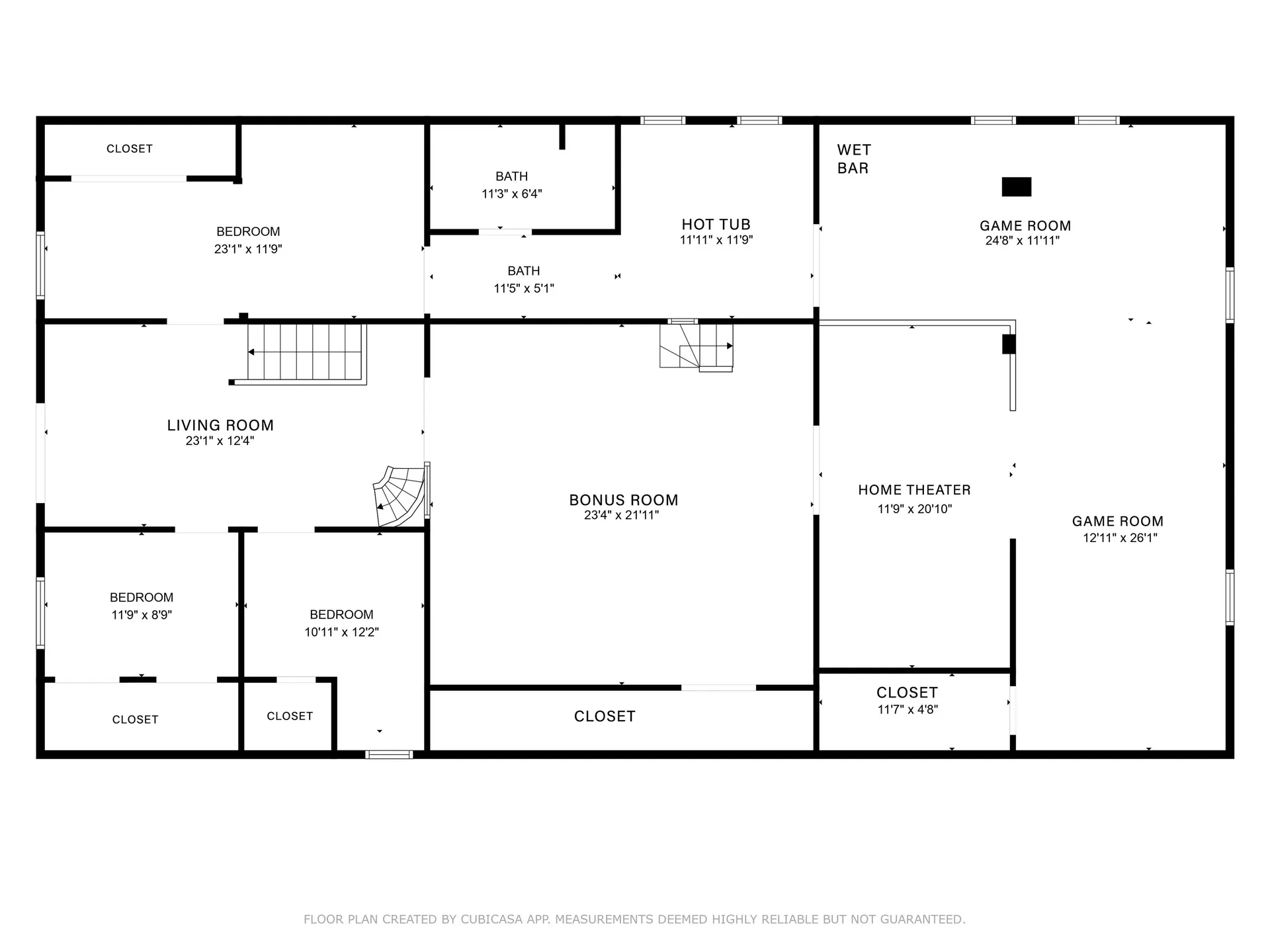
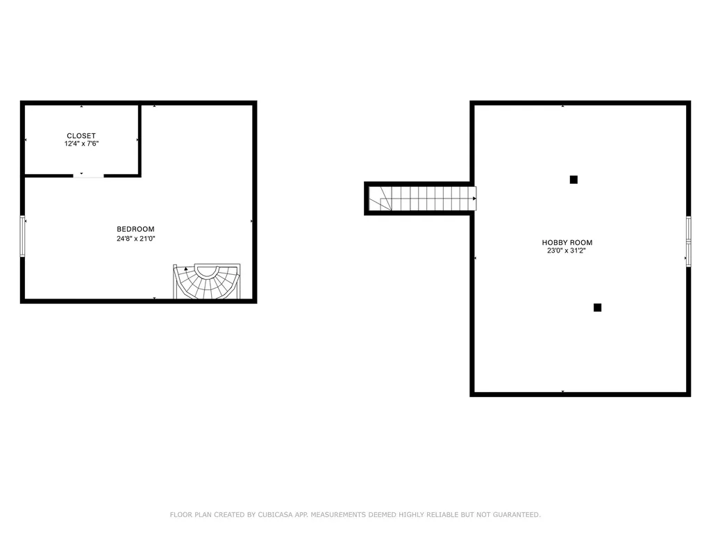
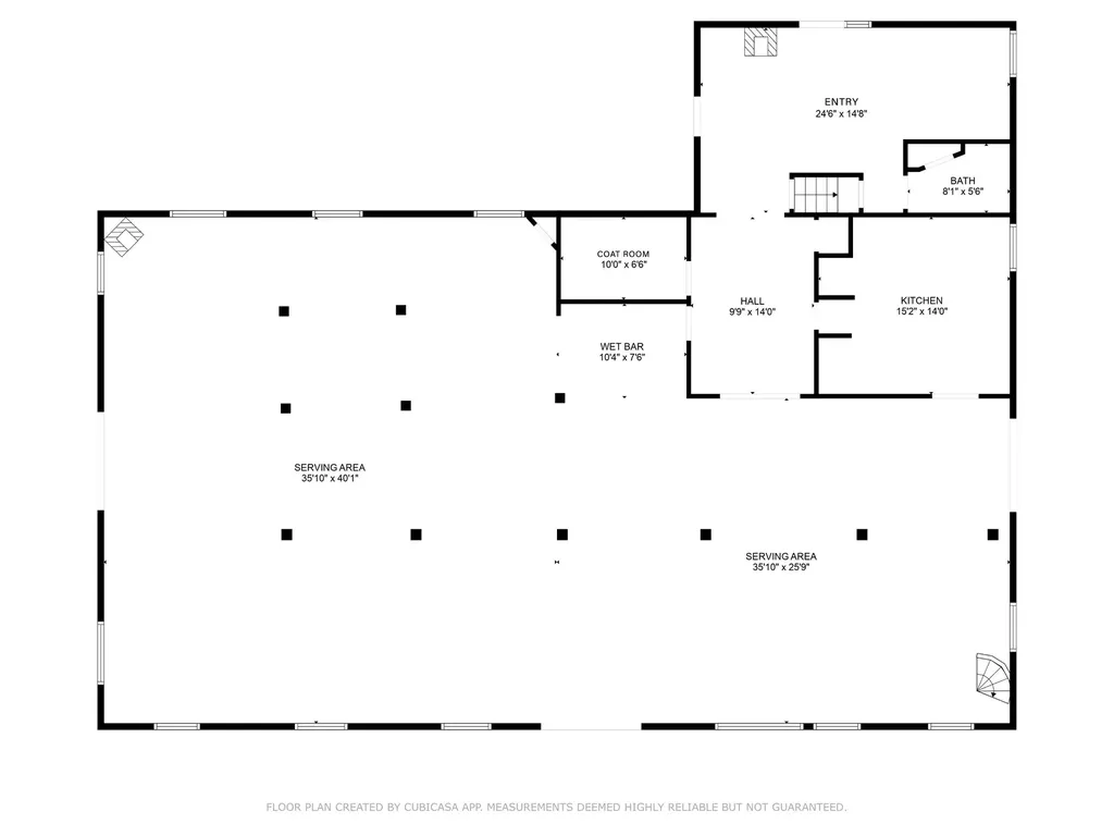
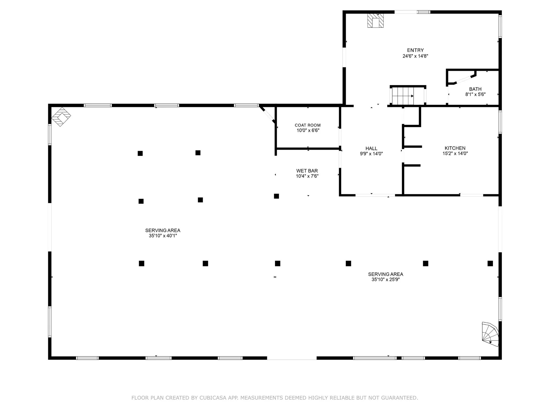
This 5 BD, 3 BA home has the perfect combination of space and opportunities. You'll be surprised to find 2 KITs, 2 washer/dryer units, a heated floor, vaulted ceilings, and a hot tub in the main bath. There is also space for an accessory apartment! The first level has been renovated into a beautiful 3100 SF event center. With a wet bar, coat closet, industrial prep KIT, and large open area with posts and beams. The previous owners were able to host weddings there! Also, there are rooms styled to be the bride and groom's areas to get ready. Beyond the event center space, you'll also find a second KIT that's just for the residents, with a gas stove, dishwasher and separate dining area. There's a casual room to watch tv, then take the staircase upstairs to find a home theatre with surround sound and a wet bar, a game room including a pool table. Also, find a bonus room with a ping pong table with plenty of space for fun gatherings. Outside you will find a 4000 SF free span garage, with space for 20 cars, plus room to maintain those cars; or turn into a barn with up to 16 horse stalls. The grounds include a small pond with an island, offering a peaceful place to retreat and relax. The outside also is designed to host weddings, as there are benches for guests. This property offers business opportunities galore, Located in a quiet neighborhood w/ beautiful panoramic views, great schools, nearby hiking trails and minutes from the ocean.

Property Details of 245 Arundel Road

Property Details

Interior Features

Exterior Features

Utilities and Appliances

Other Details

Map Location

Driving Directions

Broker Reciprocity 

Copyright 2025 PrimeMLS, Inc. All rights reserved. This information is deemed reliable, but not guaranteed. The data relating to real estate displayed on this display comes in part from the IDX Program of PrimeMLS. The information being provided is for consumers’ personal, non-commercial use and may not be used for any purpose other than to identify prospective properties consumers may be interested in purchasing. Data last updated November 12, 2025 12:25 PM EST

 

Hi there! How can we help you?

Contact us using the form below or give us a call.

Send Us A Message:

I agree to receive marketing and customer service calls and text messages from The Bassett Team. To opt out, you can reply 'stop' at any time or click the unsubscribe link in the emails. Consent is not a condition of purchase. Msg/data rates may apply. Msg frequency varies. Privacy Policy.

Do not fill in this field:

This site is protected by reCAPTCHA and the Google Privacy Policy and Terms of Service apply.