Listing Tools

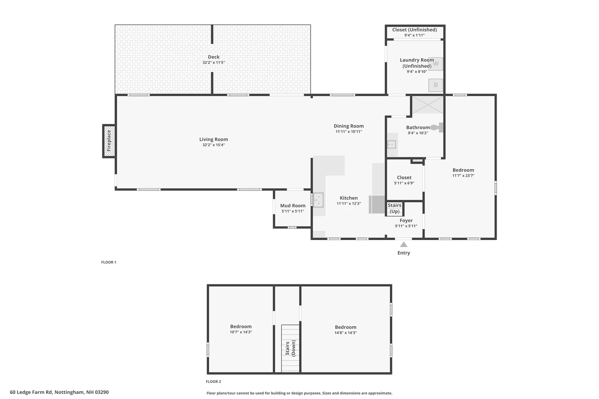
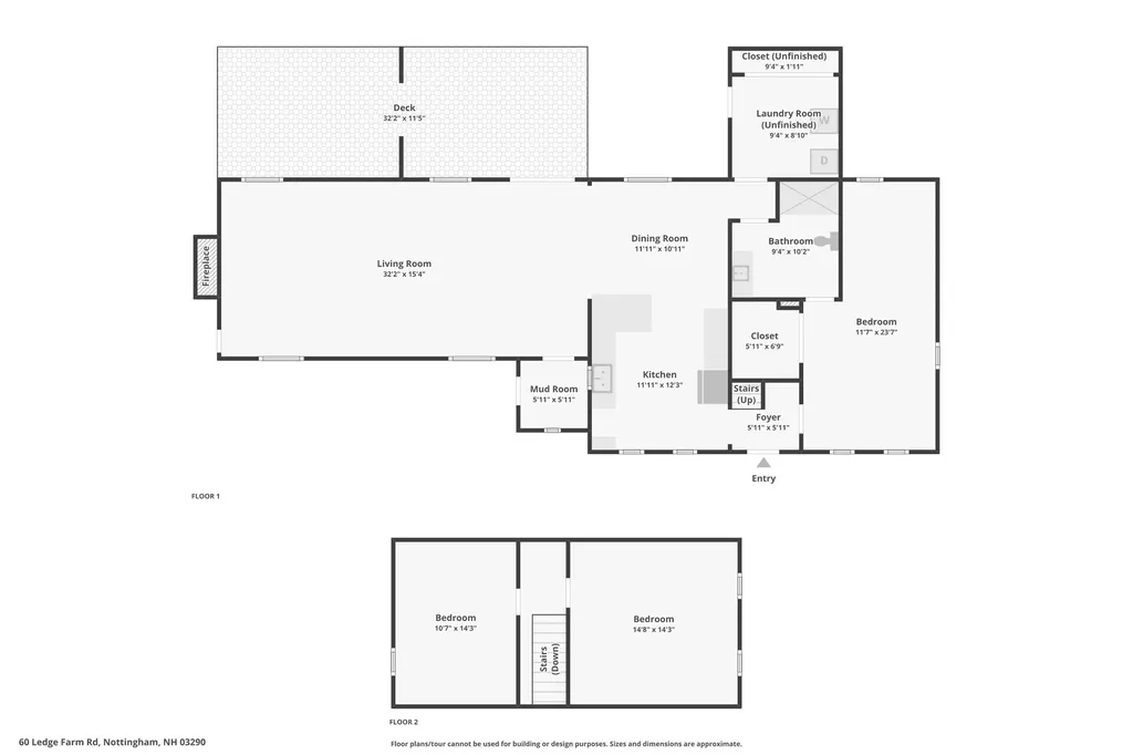
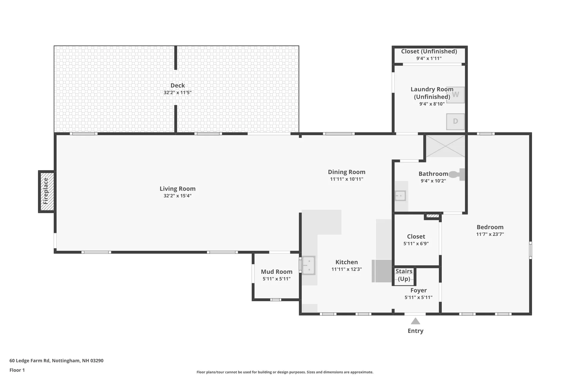
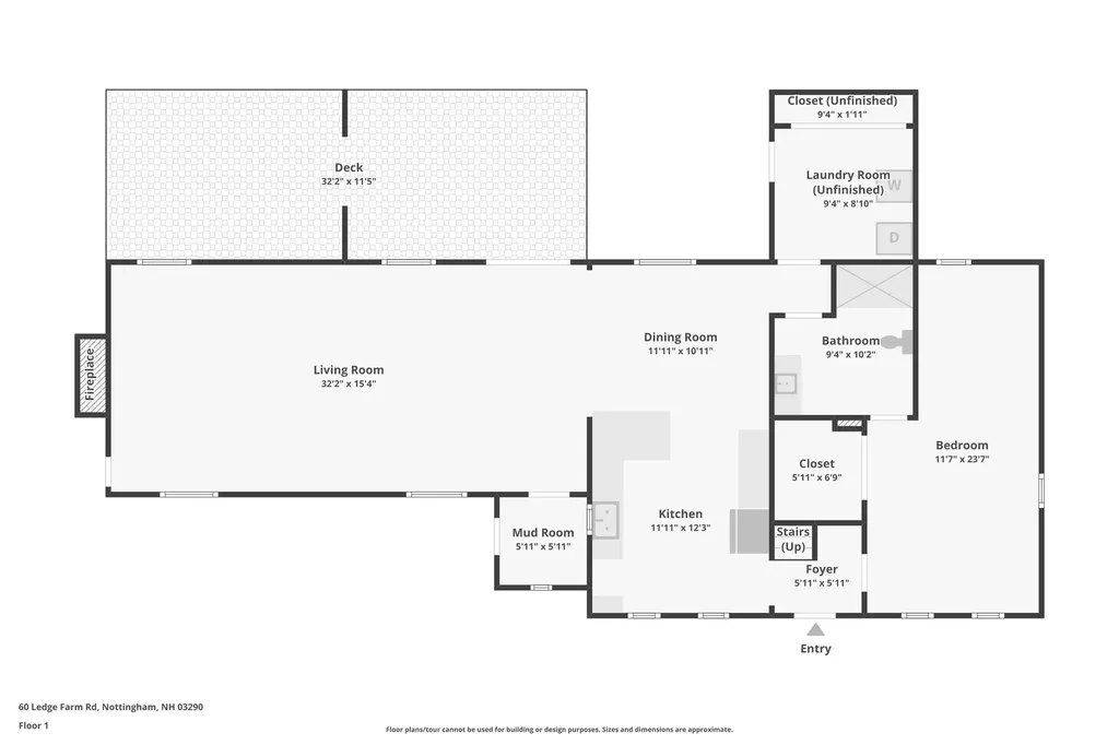
Serenity awaits in this peaceful setting with over 7 acres! Beautiful Barn now INCLUDED!! So many possibilities! This antique style home with beautiful back deck overlooks an amazing landscape. Metal roof, NEW well July 2025, newer heating system. New water filtration system being installed!The living room boasts a showstopper of a fireplace while the wooden ceiling adds character and charm. Kitchen with custom cabinets with sliding storage as well as dining area and laundry on the first floor. The main level finishes off with a FIRST floor bedroom and a full bath. Upstairs there are two more bedrooms that await your finishing touches. So much possibility to make this home your own while surrounded by magnificent views. 2 acres is in process of being sold to neighbor. Final lot 7.74 acres

Property Details of 60 Ledge Farm Road

Property Details

Interior Features

Exterior Features

Utilities and Appliances

Other Details

Map Location

Driving Directions

Broker Reciprocity 

Copyright 2025 PrimeMLS, Inc. All rights reserved. This information is deemed reliable, but not guaranteed. The data relating to real estate displayed on this display comes in part from the IDX Program of PrimeMLS. The information being provided is for consumers’ personal, non-commercial use and may not be used for any purpose other than to identify prospective properties consumers may be interested in purchasing. Data last updated November 6, 2025 6:52 PM EST

 

Hi there! How can we help you?

Contact us using the form below or give us a call.

Send Us A Message:

I agree to receive marketing and customer service calls and text messages from The Bassett Team. To opt out, you can reply 'stop' at any time or click the unsubscribe link in the emails. Consent is not a condition of purchase. Msg/data rates may apply. Msg frequency varies. Privacy Policy.

Do not fill in this field:

This site is protected by reCAPTCHA and the Google Privacy Policy and Terms of Service apply.