Listing Tools

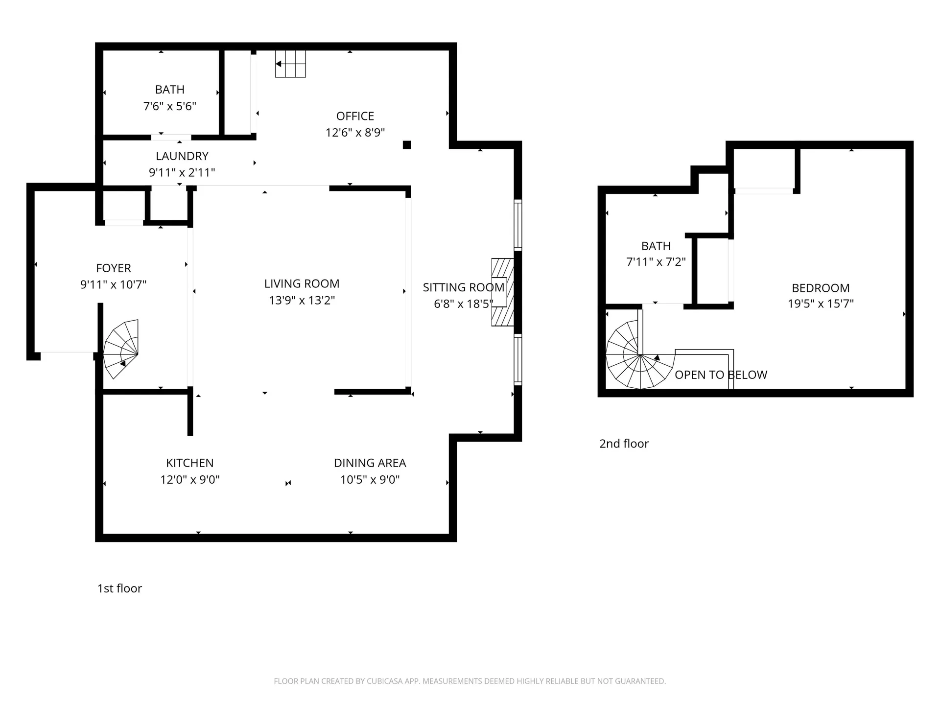
Welcome to this exceptional one-bedroom condo in the historic Whipple School building, originally built in 1890 and beautifully preserved in the heart of downtown Portsmouth, NH. This iconic building has been thoughtfully transformed into an 11-unit condominium association, offering a rare blend of timeless character and modern convenience just one block from Portsmouth’s vibrant downtown. Soaring vaulted ceilings and tall windows create an airy, light-filled living space, while exposed brick walls, original beams, and warm hardwood floors showcase the architectural charm of this historic property. The open-concept main level features a bright and inviting living area that flows seamlessly into the well-appointed kitchen, complete with stainless steel appliancesideal for both everyday living and entertaining. A thoughtfully designed Murphy bed on the first floor provides flexible accommodations for guests. Upstairs, a striking spiral staircase leads to a spacious primary bedroom offering generous space, ample closet storage, and a private full bath. Both full bathrooms feature tile flooring, while warm wood floors extend throughout the rest of the home, adding continuity and character. Additional highlights include two deeded parking spaces, a true rarity in downtown Portsmouth, along with assigned basement storageperfect for bikes, kayaks, and more. Leave the car at home and enjoy everything Portsmouth has to offer, from nearby cafs and waterfront strolls to shopping, dining, and cultural attractions, all just steps away. Easy access to I-95 north and south adds to the home’s convenience. This unique condo presents the opportunity to own a piece of Portsmouth history while enjoying the comfort, flexibility, and walkable lifestyle of modern downtown living.

Property Details of 609 State Street, Unit 7

Property Details

Interior Features

Exterior Features

Other Details

Map Location

Driving Directions

Broker Reciprocity 

Copyright 2026 PrimeMLS, Inc. All rights reserved. This information is deemed reliable, but not guaranteed. The data relating to real estate displayed on this display comes in part from the IDX Program of PrimeMLS. The information being provided is for consumers’ personal, non-commercial use and may not be used for any purpose other than to identify prospective properties consumers may be interested in purchasing. Data last updated February 17, 2026 7:23 AM EST

 

Hi there! How can we help you?

Contact us using the form below or give us a call.

Send Us A Message:

I agree to receive marketing and customer service calls and text messages from The Bassett Team. To opt out, you can reply 'stop' at any time or click the unsubscribe link in the emails. Consent is not a condition of purchase. Msg/data rates may apply. Msg frequency varies. Privacy Policy.

Do not fill in this field:

This site is protected by reCAPTCHA and the Google Privacy Policy and Terms of Service apply.