Listing Tools

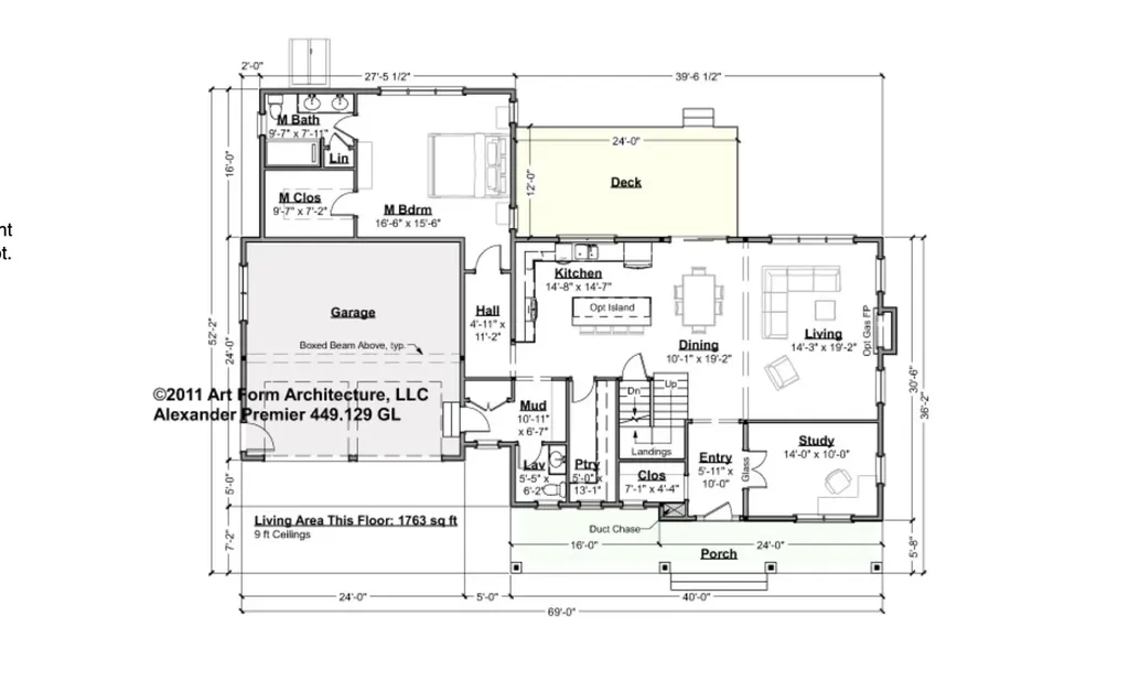
Introducing the Alexander Premier-an elevated, ENERGY STAR® certified home that nails the sweet spot between open-concept living & intentional, livable separation. The 1st level is anchored by a light-filled kitchen with center island, Yorktown Classic cabinetry, quartz countertops, tile backsplash, & under-cabinet lighting. The space flows seamlessly into the dining area & spacious living room, complete with a cozy gas fireplace. A private study offers true versatility as a home office, flex space, or optional dining area. The 1st floor primary suite provides the convenience & privacy today's buyers crave, featuring a walk-in closet & a spa-like bath with a custom tile shower. Natural ash hardwood runs through the living areas, complimented by tile in baths & laundry for durability & easy maintenance. Everyday function is thoughtfully built in with a practical mudroom entry from the garage & powder room-exactly where you need them. Upstairs, is 3 well-sized bedrooms, full baths, ample storage, & an unfinished bonus room offering exciting potential for expanded living space or guest accommodations. Designed for year-round comfort & efficiency, the home features forced hot-air heating & central A/C with multiple zones, on-demand hot water heater, & ENERGY STAR® certified appliances. Smart-home conveniences include security/control panel, Nest doorbell, door & window sensors, & Ecobee thermostats. Outdoor living shines with a covered front composite porch, generous 12x24 composite rear deck, & full-lawn irrigation. Set within Emerson Ridge at Janetos Farm, a stunning new neighborhood rooted in the area's agricultural history, this setting offers a rare blend of space, scenery, & convenience. Wooded surroundings & nearby community trails create a peaceful backdrop, while downtown Dover puts dining & shopping within easy reach. Golf, outdoor recreation, & the Seacoast lifestyle are all right outside your door, making this compelling as the home itself.

Property Details of Lot 1 Emerson Ridge, Unit 1

Property Details

Interior Features

Exterior Features

Utilities and Appliances

Community

Map Location

Driving Directions

Broker Reciprocity 

Copyright 2026 PrimeMLS, Inc. All rights reserved. This information is deemed reliable, but not guaranteed. The data relating to real estate displayed on this display comes in part from the IDX Program of PrimeMLS. The information being provided is for consumers’ personal, non-commercial use and may not be used for any purpose other than to identify prospective properties consumers may be interested in purchasing. Data last updated February 9, 2026 3:22 AM EST

 

Hi there! How can we help you?

Contact us using the form below or give us a call.

Send Us A Message:

I agree to receive marketing and customer service calls and text messages from The Bassett Team. To opt out, you can reply 'stop' at any time or click the unsubscribe link in the emails. Consent is not a condition of purchase. Msg/data rates may apply. Msg frequency varies. Privacy Policy.

Do not fill in this field:

This site is protected by reCAPTCHA and the Google Privacy Policy and Terms of Service apply.